Villa contemporaine avec vue sur la mer à vendre à Moraira
Villa | Vente | Moraira
les caractéristiques
- Châmbres à coucher: 4
- Salle de bains: 4
- Construit: 426m2
- Intrigue: 860m2
- : 2
- : 1
- Armoires encastrées: 4
- Places de parking: 3
- note de l'énergie: En cours de traitement
- l'année de construction: 2017
- Orientation: South
- Piscine
- Balcon: 290 m2
- Distance à la plage: 3 km.
- Distance de divertissement: 3 km.
- Proche de toutes commodités
- Cuisine d'été
- Extérieur Terrasse
- Chauffage - par le sol
- Vue: vue mer panoramique
- Garage
- Portes de voiture électrique
- Système d'alarme
- Ascenseur
- Toilette extérieure
- Douche extérieure
- Jardin
- Climatisation - conduit
- Chauffage par eau solaire
- Piscine - à débordement
- Irrigation automatique
- Jardins paysagers
- Appareils de cuisine
- Armoires encastrées
- Salle de cinéma
Dèscription
Cette villa de 4 chambres et 4 suites présente un design moderne et offre une vue panoramique sur la mer. Elle est idéalement située à seulement 3 km de la ville de Moraira et de la plage.
Cette magnifique villa dispose d'une architecture méditerranéenne contemporaine qui crée une abondance de géométrie, de lumière et d'espace.
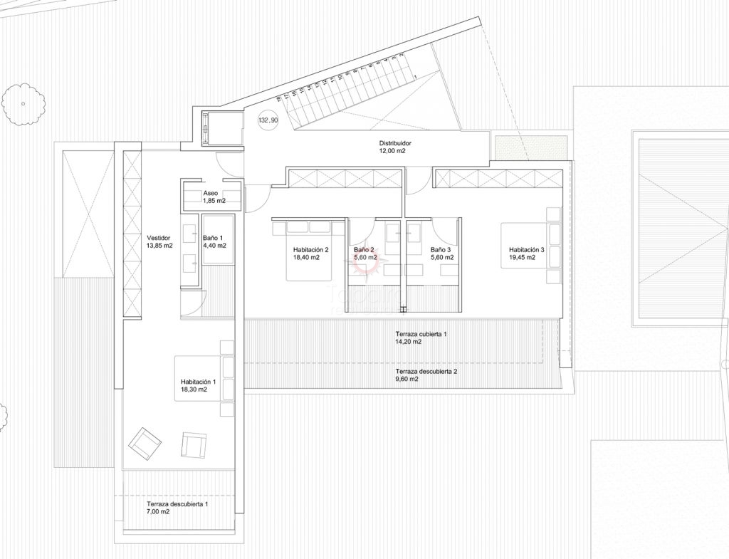
426,0 mètres de construction répartis sur le sol, le sol inférieur et les premiers étages. Au rez-de-chaussée, hall d'entrée escalier et ascenseur de passagers, grand espace ouvert ouvrant sur la piscine et les terrasses couvertes, avec coin salon et salle à manger et cuisine de luxe entièrement équipée avec l'île centrale, une grande chambre avec dressing et salle de bains, et vestiaire. Le premier étage se compose d'une galerie couloir regardant vers le bas dans le hall d'entrée, la deuxième chambre à coucher principale avec terrasse balcon privé, et deux autres suites de chambre ouvrant sur une grande terrasse. Le sol inférieur est relié à la maison principale par l'ascenseur et l'escalier offre un garage à deux voitures et 100 mètres de plus d'hébergement, y compris une salle de cinéma.
À l'extérieur, il y a une zone de chill-out au bord de la piscine, une piscine rectangulaire de 12,5 mètres, une douche extérieure et un manteau, 290,20 mètres carrés de terrasse et des terrasses couvertes et un magasin extérieur.
Offrant un service professionnel et éthique, Tabaira Real Estate, basée à Moraira, est spécialisée dans la prestation de services immobiliers à Moraira, Javea, Benissa et Benitachell. Avec un large portefeuille de propriétés directes et avec accès à plus de 900 villas, appartements et maisons en rangée via leurs collaborateurs, ils ont une équipe multinationale prête à vous aider à trouver la maison de vos rêves dans le Costa Blanca North. Avec Tabaira Real Estate, vous ne devez pas vous soucier de l'achat de votre propriété, il vous suffit de vivre dans votre propriété.
Les données affichées sur ce site sont proposées par des tiers, simplement informatives et supposées correctes. Notre société ne garantit pas sa véracité. L'offre est sujette à des erreurs, changements de prix, omission et / ou retrait du marché sans préavis.
Économie
les propriétés similaires
-
Villa · Nouvelle construction · Benimeit Ref: C-40624
1.590.000€ -
Vue sur mèr
Villa · Vente · Benimeit Ref: 20.3807C
1.590.000€ -
Villa · Vacances · Benimeit Ref: 20.3896
1.850.000€ -
Villa · Vente · Benimeit Ref: 20.3970C
1.850.000€1.695.000€ -
Vue sur mèr
Villa · Nouvelle construction · Benimeit Ref: 20.3930C
1.440.000€ -
Villa · Vente · Benimeit Ref: TB03-17980
1.265.000€
English
Español
Deutsch
Nederlands
русский
Svenska
Français

